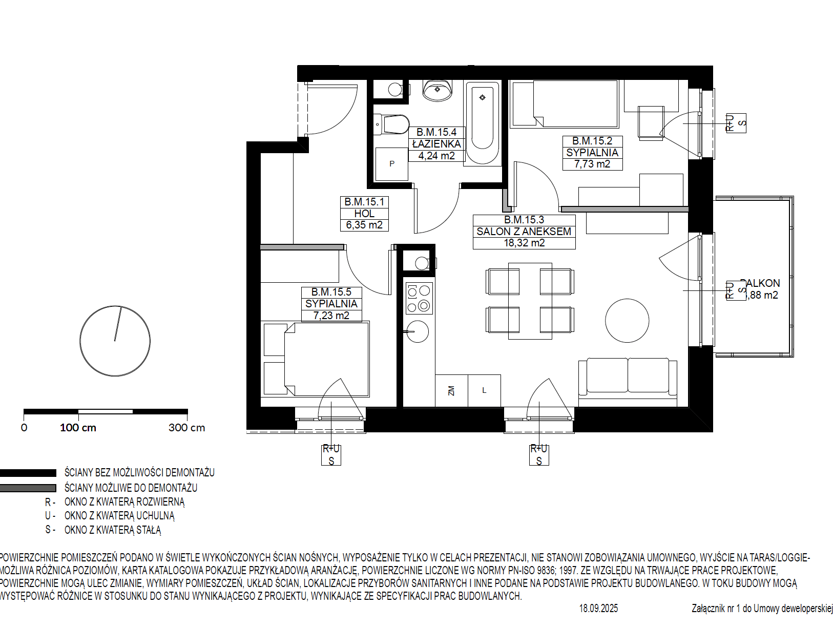
Mieszkanie A3.M.15
324 482,07 PLN brutto
7 394,76 PLN brutto/m2
Status: Dostępne
| Budynek: | A3 |
| Mieszkanie: | 15 |
| Powierzchnia: | 43.88 m2 |
| Piętro: | 1 |
Biuro sprzedaży:
sprzedaz@osiedleprzyszlosc.pl
tel. +48 724 881 911

