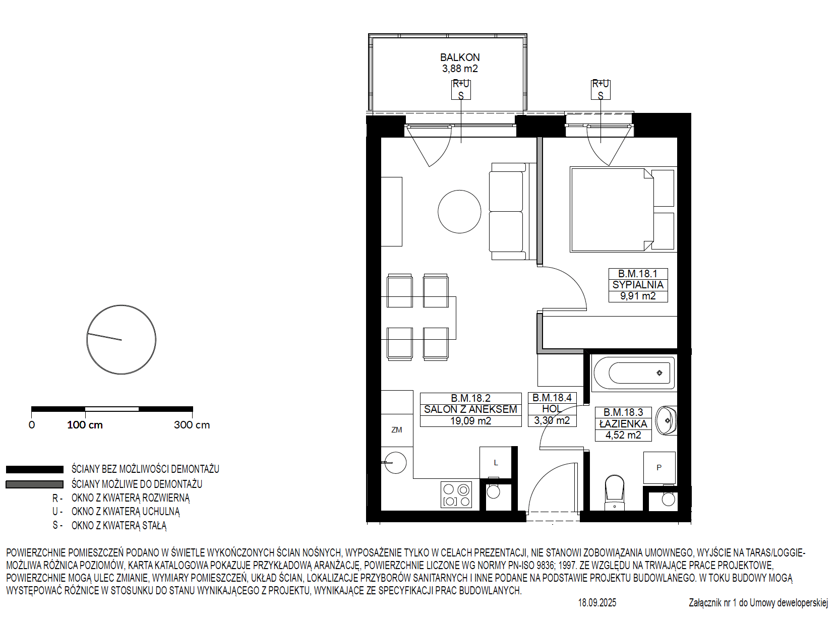
Mieszkanie A3.M.18
275 725,30 PLN brutto
7 484,40 PLN brutto/m2
Status: Dostępne
| Budynek: | A3 |
| Mieszkanie: | 18 |
| Powierzchnia: | 36,84 m2 |
| Piętro: | 1 |
Biuro sprzedaży:
sprzedaz@osiedleprzyszlosc.pl
tel. +48 724 881 911

