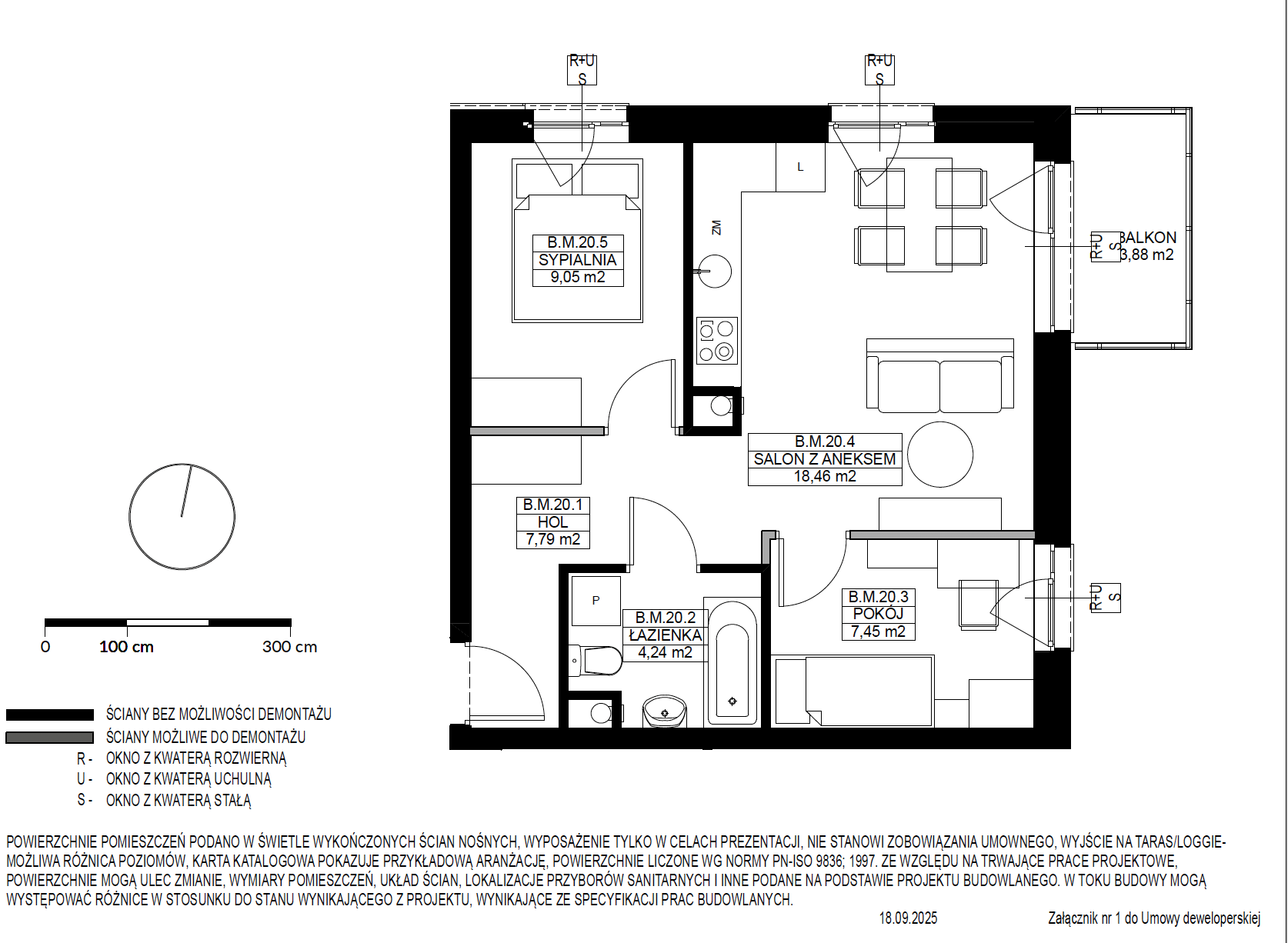
Mieszkanie A3.M.20
345 168,00 PLN brutto
7 344,00 PLN brutto/m2
Status: Dostępne
| Budynek: | A3 |
| Mieszkanie: | 20 |
| Powierzchnia: | 47,00 m2 |
| Piętro: | 1 |
Biuro sprzedaży:
sprzedaz@osiedleprzyszlosc.pl
tel. +48 724 881 911

