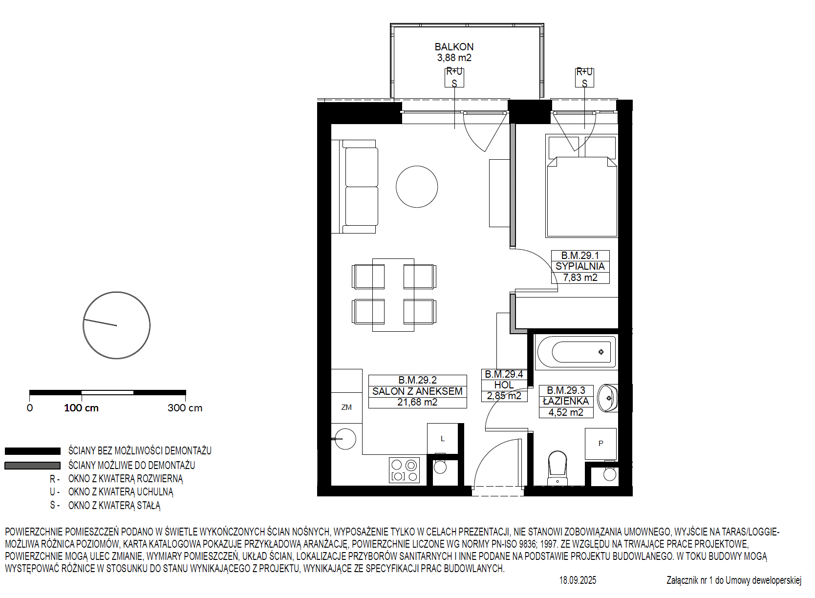
Mieszkanie A3.M.29
281 202,62 PLN brutto
7 624,80 PLN brutto/m2
Status: Rezerwacja
| Budynek: | A3 |
| Mieszkanie: | 29 |
| Powierzchnia: | 36,88 m2 |
| Piętro: | 2 |
Biuro sprzedaży:
sprzedaz@osiedleprzyszlosc.pl
tel. +48 724 881 911

