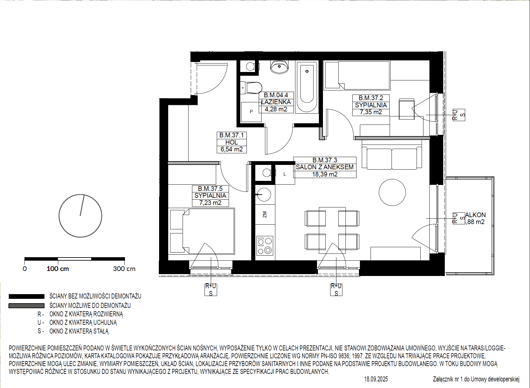
Mieszkanie A3.M.37
336 804,48 PLN brutto
7 689,60 PLN brutto/m2
Status: Dostępne
| Budynek: | A3 |
| Mieszkanie: | 37 |
| Powierzchnia: | 43.80 m2 |
| Piętro: | 3 |
Biuro sprzedaży:
sprzedaz@osiedleprzyszlosc.pl
tel. +48 724 881 911

