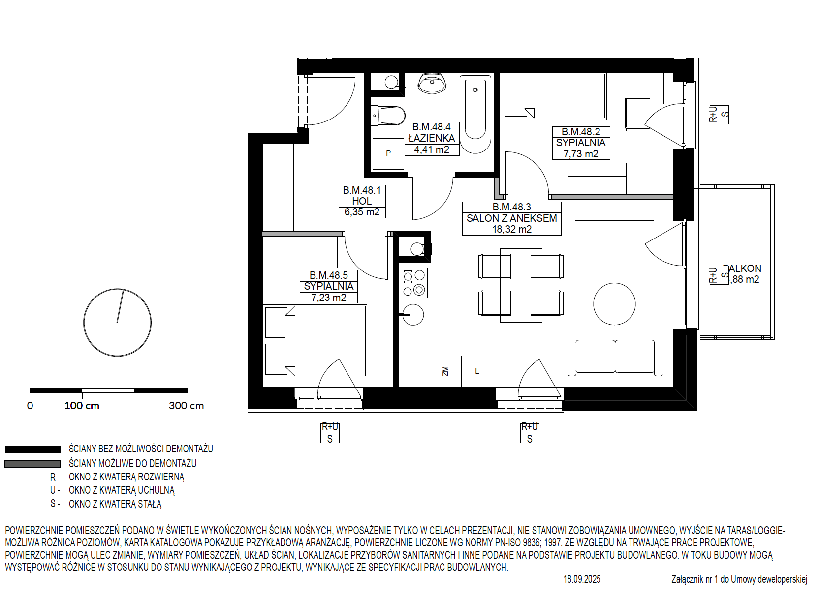
Mieszkanie A3.M.48
337 342,75 PLN brutto
7 689,60 PLN brutto/m2
Status: Rezerwacja
| Budynek: | A3 |
| Mieszkanie: | 48 |
| Powierzchnia: | 43.87 m2 |
| Piętro: | 4 |
Biuro sprzedaży:
sprzedaz@osiedleprzyszlosc.pl
tel. +48 724 881 911

