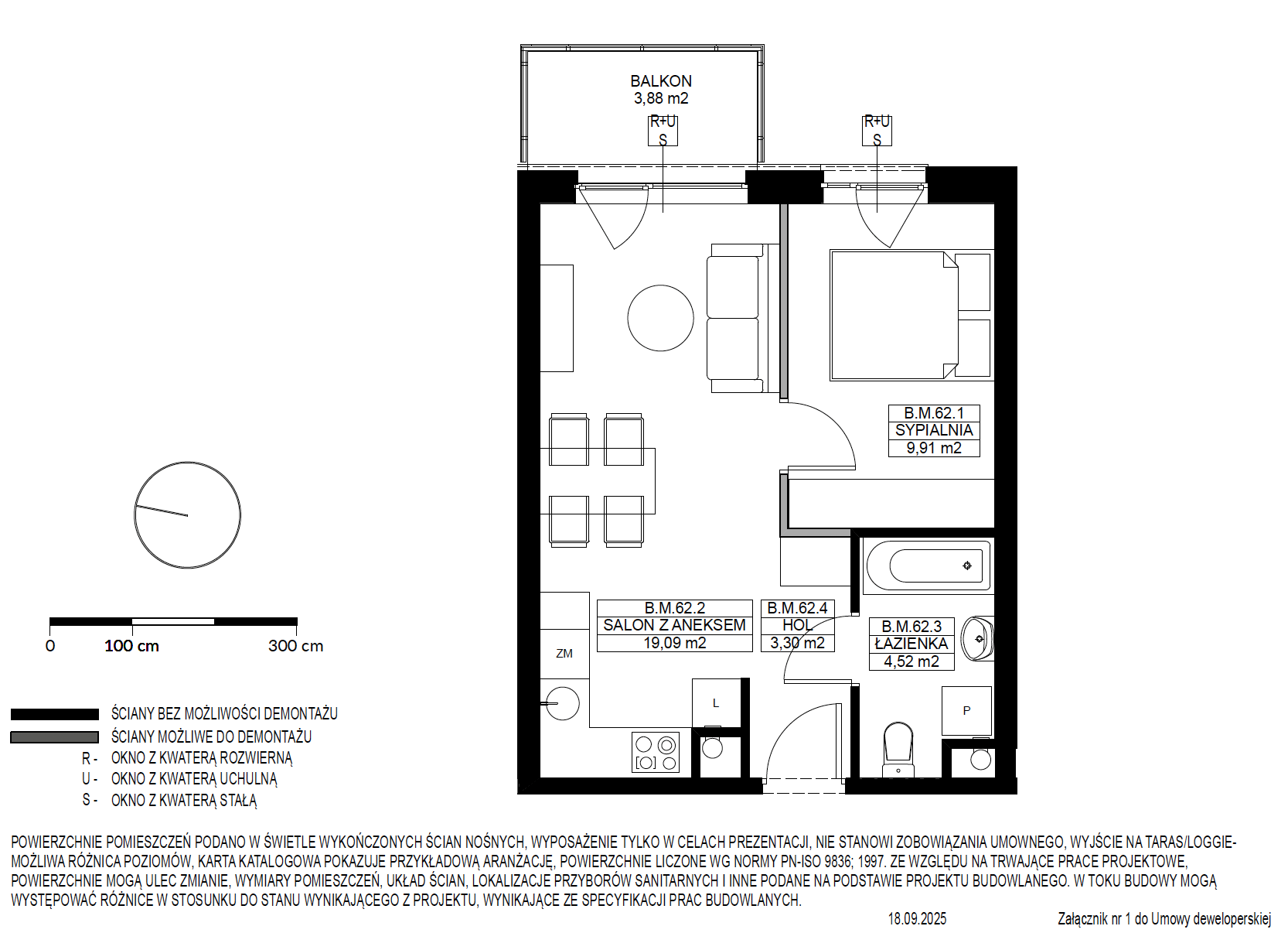
Mieszkanie A3.M.62
285 395,67 PLN brutto
7 749,00 PLN brutto/m2
Status: Rezerwacja
| Budynek: | A3 |
| Mieszkanie: | 62 |
| Powierzchnia: | 36,83 m2 |
| Piętro: | 5 |
Biuro sprzedaży:
sprzedaz@osiedleprzyszlosc.pl
tel. +48 724 881 911

